Строительство домов в Тольятти

УЗНАТЬ ПОДРОБНЕЕ О СЕЛЬСКОЙ ИПОТЕКЕ В 3%

ПО СЕЛЬСКОЙ
ИПОТЕКЕ

3%

КОТТЕДЖИ НА БЕРЕГУ ВОЛГИ

В 20 МИНУТАХ ОТ ТОЛЬЯТТИ

МЫ СТРОИМ ДОМА В ПОСЕЛКЕ ЛУНАЧАРСКИЙ

ПОСМОТРИТЕ НА ЕГО ОКРЕСТНОСТИ
ПОСТРОИМ ДОМ ЗА 4 МЕСЯЦА
СО ВСЕМИ КОММУНИКАЦИЯМИ
Кровля: металлочерепица 0,5мм, цвет графит-шёлк, карнизы.
Земельный участок 8,6 сот
керамзитобетонные блоки 400 мм + утеплённый фасад 100 мм, фасадная штукатурка.
Панорамные окна, профиль REHAU 70 мм, фурнитура ROTO. Стеклопакеты 40 мм.
А самое главное:
Вам не нужно самим искать электриков, кровельщиков, и пр, разбираться во всех нюансах и контролировать их работу - все специалисты есть у нас в штате.

Мы разбиваем строительство вашего дома на этапы и несем ответственность за каждый
КАКИЕ ОБЪЕКТЫ МЫ СТРОИМ
2-комнатный коттедж
3-комнатный коттедж
от 46 000 руб/м²
от 44 000 руб/м²
от 46 000 руб/м²
Строк стройки от 3 месяцев
Строк стройки от 3 месяцев
Строк стройки от 3 месяцев
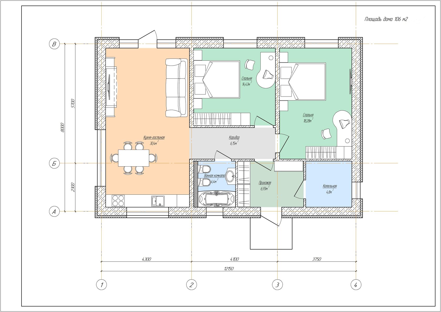
106 м²
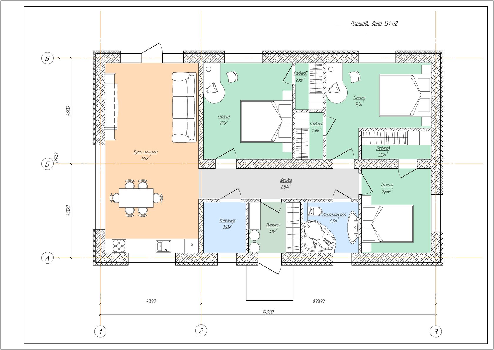
131 м²
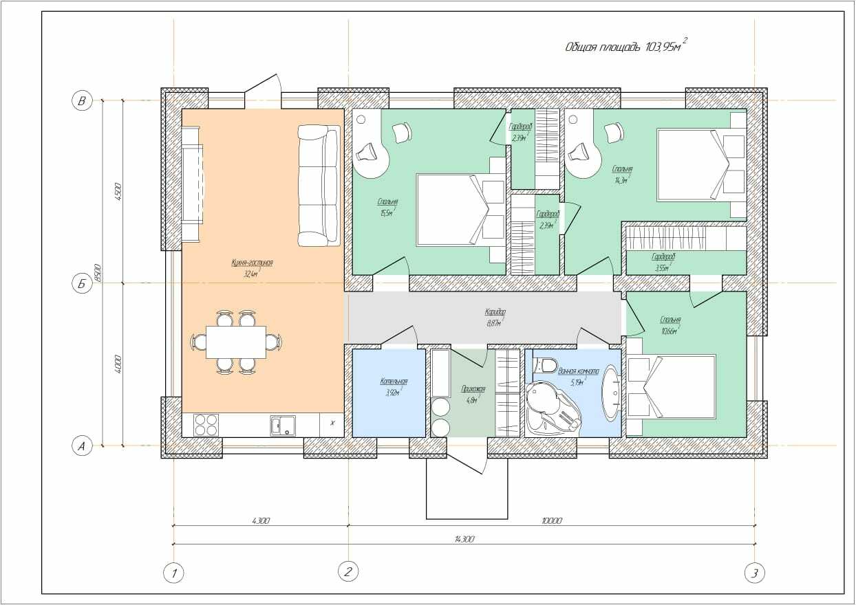
104 м²
3-комнатный коттедж
ПОДРОБНЕЕ
Преимущества жизни в п.Луначарском
20 минут от центра города
Развитая инфраструктура.
Богатя природа, чистый воздух и пляж на Волге
1
2
3
ДОМ 106м²
Стильный одноэтажный дом собственным земельным участком 8,6 сот.

Конструктив:
– Стены: керамзитобетонные блоки 400 мм + утеплённый фасад 100 мм, фасадная штукатурка.
– Кровля: металлочерепица 0,5мм, цвет графит-шёлк, карнизы.
– Перекрытие утеплённое 200 мм по деревянным балкам.
– Полы утеплённые XPS, чистовая стяжка.
– Панорамные окна, профиль REHAU 70 мм, фурнитура ROTO. Стеклопакеты 40 мм.

Предчистовая отделка: система водяного тёплого пола, разводка электрических и слаботочных сетей по дому, разводка водоснабжения, штукатурка стен, черновые и чистовые полы утеплённые плитами XPS. Своя скважина, выгребная яма с вводом в дом. Электрика и слаботочные сети разведены по дому.

ДОМ 131 м2
Стильный одноэтажный дом собственным земельным участком 8,6 сот.

Конструктив:
– Стены: керамзитобетонные блоки 400 мм + утеплённый фасад 100 мм, фасадная штукатурка.
– Кровля: металлочерепица 0,5мм, цвет графит-шёлк, карнизы.
– Перекрытие утеплённое 200 мм по деревянным балкам.
– Полы утеплённые XPS, чистовая стяжка.
– Панорамные окна, профиль REHAU 70 мм, фурнитура ROTO. Стеклопакеты 40 мм.

Предчистовая отделка: система водяного тёплого пола, разводка электрических и слаботочных сетей по дому, разводка водоснабжения, штукатурка стен, черновые и чистовые полы утеплённые плитами XPS. Своя скважина, выгребная яма с вводом в дом. Электрика и слаботочные сети разведены по дому.

п.ЛУНАЧАРСКИЙ
Load maps ...
В поселке развитая инфраструктура: школа, детский сад с бассейном, дом культуры, музыкальная школа, физкультурно-оздоровительный комплекс, магазины, рынок, аптека, общественный транспорт.
Дорога до поселка на машине от г.Тольятти займет всего 20 минут. К тому же, жильцам не придется стоять в пробках, т.к. поселок имеет несколько выездов. Также ходит общественный транспорт.
ПОЧЕМУ НАМ ДОВЕРЯЮТ
Четко соблюдаем сроки
15 лет на строительном рынке
Фиксируем цену в договоре
Разбиваем строительство на этапы
Сами закупаем материалы
Советуем и подсказываем
построим индивидуальный проект по вашим пожеланиям.
даем
пожизненную
гарантию на
фундамент
которая не
изменится в
процессе
строительства
все этапы идут согласно нормам ГОСТу и СНиП
подбираем марки всех черновых и чистовых материалов
на каждом этапе
строительства,
опираясь на
свой опыт
Валерий Ефремов
Генеральный директор
__
"
Наша компания сделает вашу мечту о собственном доме реальностью. Строительство коттеджа в Луначарском – это прекрасная возможность получить уединенную тишину и покой вблизи красивого уголка природы.
"
Задать вопрос директору
КАК НАЧАТЬ РАБОТУ С НАМИ?
Оставляете заявку
на сайте
Оставляйте заявку,
мы свяжемся с вами и ответим на все вопросы
Договариваемся о встрече у вас на объекте или у нас в офисе, обсуждаем все работы
Рассчитываем точную стоимость и составляем смету
Заключаем договор, фиксируем стоимость и сроки
Приступаем к работе
или звоните нам
+7(8482) 61-64-83
1
2
3
4
5
НАШИ СЕРТИФИКАТЫ: